转臂式稳态离心试验机是通过传动系统,让固定在旋转架上的发动机转动而产生离心力,在过载情况下测试其某些性能参数的变化情况,主要用于航天航空等领域的科学研究。
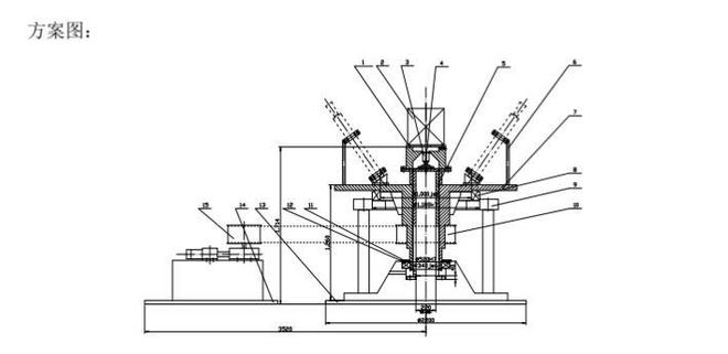
以下是HYZB系列转臂式稳态离心试验机的方案图:
.jpg)
该方案的特点:
1.实验装置的重心降低,动架上的载荷减小,稳定性增加。
2.对测量件的要求也大大降低了 ,而且可以实现多个角度范围的测量。
3.可承受较大的扭矩,使整个装置的稳定性和可靠性提高。
4.整个系统结构更简洁,制造工艺更好。
5.工作稳定,使测量精度高,效率高、寿命长、靠、传动比稳定。
6.扭矩低。
产品参数:
.jpg)








