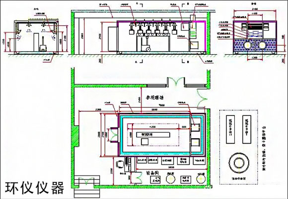
该环境气候试验室主要由高低温循环系统、加湿系统、除湿系统、光照模拟系统、降雨系统、造雪系统、覆冰系统、吹雾系统与强力吹风系统组成,可用于电力值守机器人等产品的多种环境适应性试验。
产品结构:

实现功能:

各系统性能:
1.高低温环境系统:
温度范围:-20℃~85℃;
温度波动度:±2℃;
温度偏差:±2℃;
降温速率≥0.7℃/min;
升温速率≥1℃/min;
系统组成:空气循环系统、制冷装置与加热装置;
循环方式:加热与制冷后的空气通过天花边侧风道送出,从左侧回风口回风,回风道安装蒸发器与加热器对循环风进行加热与制冷来控制循环风的温度;
2.湿度控制系统:
湿度范围:RH20%~RH98%;
湿度波动度:±5%;
湿度偏差:±5%;
系统组成:空气循环系统、制冷装置、加热装置与超声波加湿器;
实现方法:通过在空气循环风道内加湿或启动加热制冷装置除湿来达到控制室内相对湿度;
3.光照模拟系统:
功能:用于模拟夏天中午日光照射情况,跟太阳照射效果相吻合;
光源:LED光源,色温4700K;
功率强度:0~63W/m2;
太阳模拟灯组数量:24组;
光源距地面高度:顶部光源1600-2100mm,侧面光源1550-1050mm;
侧面光源角度:45?-90?;
结构:共24组光源,灯组电源安装于设备间,实验箱顶部安装光源灯组的升降灯架,通过四条丝杆同步驱动灯架升降,丝杆驱动结构设计在试验箱体顶部箱体外,通过电动+链条同步驱动;
4.淋雨系统:
降雨量:0.5mm/min~10mm/min;
降雨面积:L4.5mXW2.0m;
周期降雨时间:0-99.9S(可设置);
周期停顿时间:0.999.9S(可设置);
降雨累计时间:0-9999S;
试验时间:0-99.9小时(可设置);
总降雨量:0-999.9mm(可设置);
实现方法:实验室顶部安装有方锥形喷水嘴,在温度高于5℃的情况下启动喷水嘴可模拟降雨;
5.飘雪系统:
连续降雪量:5mm/h~10mm/h;
降雪面积:L4.5mXW2.0m;;
周期降雪时间:0-99.9S(可设置);
周期停顿时间:0.999.9S(可设置);
降雪累计时间:0-9999S;
试验时间:0-99.9小时(可设置);
实现方法:造雪机造雪,在室温低于-10℃的情况下启动飘雪机,即可产生降雪功能;
6.造雾系统:
能见度范围: 10~5000 m;
准确度:±10% (10~ 10000 m ) ;
测量方法:采用芬兰V aisala公司FD12P前向散射仪;
通过超声波制雾机来实现制雾;
7.覆冰系统:
环境温度范围:0℃~-20℃;
水温度:1℃~4℃;
水导电率:100uS/cm,通过去离子水加入一定的NaCl来实现;
风速:1m/s~10m/s;
喷水流量:
垂直分量:1mm/min~2mm/min;
水平分理:1mm/min~2mm/min;
8.台风系统:
风速范围:2m/s~10m/s;
风速稳定度:±1m/s;
台风中心高度:500mm;
两台风机分别从仪表架两侧吹风,可单侧吹风或双侧吹风;
实现方法:实验室左侧安装强力风机,强风吹出后再从试验室前后两侧回到回风口,形成循环路径,风速通过变频器调节。







