GJB 150.8A-2009《军用装备实验室环境试验方法第 8 部分:淋雨试验》中程序Ⅱ——强化试验程序主要为弥补不能进行带风源淋雨试验的大型户外设备,当试验装置限制不能满足 18 m/s 风速情况下,可使用该程序进行等效代替。下面,我们根据标准的要求,来做强化试验的设计与研究。
试验设备: GJB150.8A淋雨设备
试验标准:GJB 150.8A-2009 军用装备实验室环境试验方法第8部分:淋雨试验
强化试验要求:
在 GJB 150A 中,要求喷嘴压力为 276 kPa,因为当喷嘴压力为 276 kPa 时,会产生流动速度大于18 m/s 的水滴。
为保证强化喷嘴的喷射雨滴尺寸在0.5~4.5 mm,喷嘴的标称孔径一般为 1.2~2.8 mm,具体尺寸应结合降雨强度来确定,强化试验程序时间为每面 40 min。
强化装置的设计:
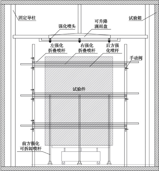
强化设计方案图如下所示。
1.其中,试验箱内部的顶部、前后面、左右面均安装强化喷水装置,强化喷水装置由阀门、管路、喷嘴等系统组成,可同时进行5个面的强化试验程序。
2.后面、左右面的喷嘴安装在不同高度可折叠的喷杆上,以适应0~1.5m高度的要求。同时在喷杆进水端设置手动球阀,不同高度的喷杆通过手动球阀独立开关,以满足不同高度范围试件的喷淋网阵。
3.顶部的9只强化喷头安装在可升降滴雨盘上,滴雨盘高度可在1~4m范围内沿固定导柱自由调节,可适应不同高度试验件顶部喷淋的要求,也可满足试验件进出箱的空间要求。
4.为适应不同试件高度的强化试验考核要求,可对左右两侧喷杆进行折叠或者关闭不同高度的喷嘴,以达到试验对喷淋网阵要求。由于受试件高度的限制,前面采用更换不同高度的喷杆来解决对试件喷淋网阵的要求。
5.为使试验人员更加方便操作,配有多种不同高度规格喷杆,并采用快速连接方式。最终设计完成的强化试验程序试验装置5个面均有9只喷嘴,每个面的最大喷淋面积均>2m²。
为得到最大表面覆盖的重叠喷淋网阵,每个面两个相邻喷嘴之间的距离均为0.71m,可以保证在每小于0.56m²接受淋雨的表面范围内至少有1个喷嘴。以选用的喷嘴进行强化试验时,推荐喷嘴距离产品表面的距离为40cm,以保证雨滴打在产品表面时的速度为18m/s,用于替代当试验装置限制不能满足该风速情况下的淋雨试验考核。
以上就是GJB150.8A淋雨设备的强化试验程序设计,如有试验疑问,可以咨询相关技术人员。












